
在很多房屋装修的时候, 都会对墙体进行改造,但是并不是所有墙体都可以进行改造的。房屋加固改造的过程中,一旦对承重墙进行拆除或改造的话,那是要做房屋加固处理的,不然房屋会存在安全隐患的。承重墙要做加固改造的话,既要考虑到房屋的安全问题,也要考虑到改造的可行性,这样才能使改造有意义。
加固承重墙是基于安全因素的考虑
1、比如有的楼房楼板太薄可能存在安全隐患。
2、阳台与客厅处的矮墙改造成门洞,就需要加固承重墙。3、有些窗体不是飘窗,而需要改成飘窗,则需要加大承重力,这些都是要考虑加固承重墙的。

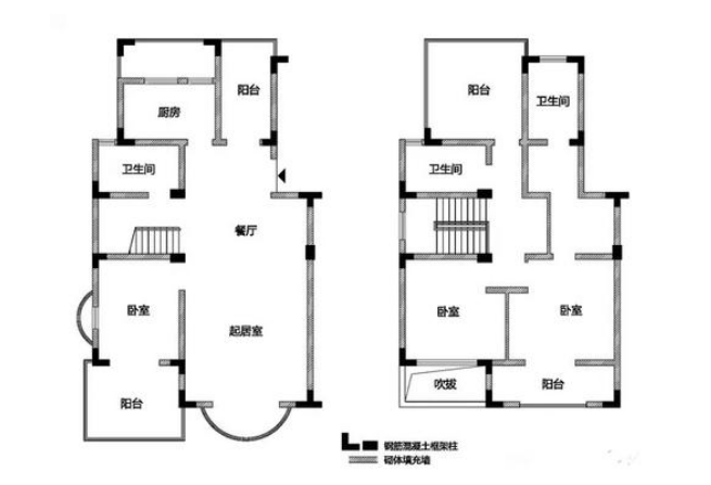
承重墙在房屋结构起到很重要的作用。在不同的房屋结构中,承重墙的辨别方式是不一样的,下面就为大家介绍辨别三种房屋结构中的承重墙的方式。
1、剪力墙结构
剪力墙结构是用钢筋混凝土墙板来代替框架结构中的梁柱,能承担各类荷载引起的内力,并能有效控制结构的水平力,这种用钢筋混凝土墙板来承受竖向和水平力的结构称为剪力墙结构。这种结构在高层房屋中被大量运用,通常设计图纸上面涂黑的墙体就是钢筋混凝土剪力墙,千万不要破坏。用斜线填充的是砌块墙体,实际上不起结构作用,因而可以进行适当的改造。

2、砌体结构
砌体结构构件主要承受轴心或小偏心压力,而很少受拉或受弯,一般民用和工业建筑的墙、柱和基础都可采用砌体结构。通常设计图纸上涂黑的部分多为钢筋混凝土构造柱,里面有钢筋,这种结构是肯定不能够拆除的;其它所有的淡色填充的墙体,都是砌体剪力墙,原则上也是不可以随意拆除的。混凝土构造柱和砌体剪力墙,构成了整个竖向结构体系,承载整个结构荷载。

3、框架结构
框架结构是指由梁和柱以钢筋相连接而成,构成承重体系的结构,即由梁和柱组成框架共同抵抗使用过程中出现的水平荷载和竖向荷载。框架结构的建筑采用的是混凝土异形柱体系,带有少量的普通框架柱,图纸上面涂黑的就是钢筋混凝土框架柱,矩形的是普通框架柱,L形的、T形的是异形柱。

如何加固承重墙
当承重墙由于前期设计、施工疏忽,或后期承受荷载不断增加而导致承载力不足时,会严重影响整体结构。承重墙强度不足时,轻者房屋开裂、缩短建筑寿命,重者造成结构整体承载力、刚度不足,发生坍塌事故,必须高度重视承重墙是否存在问题。

1、粘贴钢板加固
这是一种建筑结构工程的加固新技术。若是在承重墙或剪力墙上做面积超过0.3㎡门或窗洞口,则就需要粘钢加固了。

1、施工前,要清除基层表面的抹灰层、露出砼表面。
2、角磨机打磨待粘钢砼,去除砼表面污垢,露出石子。
3、如果遇到不平或有缺陷的部位,要用结构胶搅水泥砂浆抹平,抹平后才能准备下一道工序。
4、按照设计图纸在砼的表面画出粘钢位置线,然后用电锤打出锚固钢板的栓眼。栓眼内的灰尘要清除,固定好膨胀螺栓。对6mm以下的钢板,要用剪板机切割。
5、最后根据锚固胀栓的位置,在钢板上用台钻钻孔,要求孔径大于胀栓2mm。固定焊接注胶。
2、绕丝加固法
绕丝法适用于混凝土结构构件斜截面承载力不足,或者是需对受压构件施加横向约束力的承重墙加固。跟加大截面的固定方式有些类似,工艺简单,适应性强。如果做门洞的话,可选择绕丝加固。

3、置换混凝土加固法
置换混凝土加固法通常被用于那种受压区混凝土强度偏低,或者是有严重缺陷的梁、柱等混凝土承重构件的加固。混凝土的置换深度,板不应小于40mm;梁、柱采用人工浇筑时,不应小于60mm,采用喷射施工时,不应小于50mm。置换长度应按混凝土强度的检测结果及计算结果确定,但对非全长置换的情况,其两端应分别延伸不小于100mm的长度。

4、粘贴碳纤维布
碳纤维布在墙体加固的应用,首先可以从墙体受力的角度来分析。墙体在服役过程中,主要承受上部荷载传递的压力。这种方式不仅具有与粘贴钢板相似的优点,而且还具有良好的耐腐蚀性、耐潮湿性、使用寿命长、维护费用低以及几乎不增加结构自重等优点。

使用碳纤维布加固具有一定的局限性,当墙体承载力不满足要求、或墙体配筋率不符合要求时,宜采用增大截面加固法或钢筋混凝土面层法对墙体进行双面或单面的加固。利用这两种方法能够有效提高墙体抗压承载力,但需注意植入钢筋能否保障新旧结构共同工作,因此在增大截面或钢筋混凝土面层法中,植筋胶将是影响质量的重要因素。

建筑结构受力复杂,且事关生命安全,侥幸心理切不可取。而对于建筑加固施工来说,质量和安全是同样重要的。加固作业要找专业的施工团队,更要使用专业、品质过硬的加固材料。施邦建议您在选购加固材料时从质量、检测、品牌、口碑及服务入手,好的产品和服务会让您在施工时免除一切后顾之忧!

还没有评论,来说两句吧...